Будинок, 125 м², 2 поверхи, 4 кімнати, 5 сот.60 000 USDБіла Церква, Белоцерковский, с.Глушки • На мапі Кімнат4
Площа125 м²
Ділянка5 сот.
Поверхів2
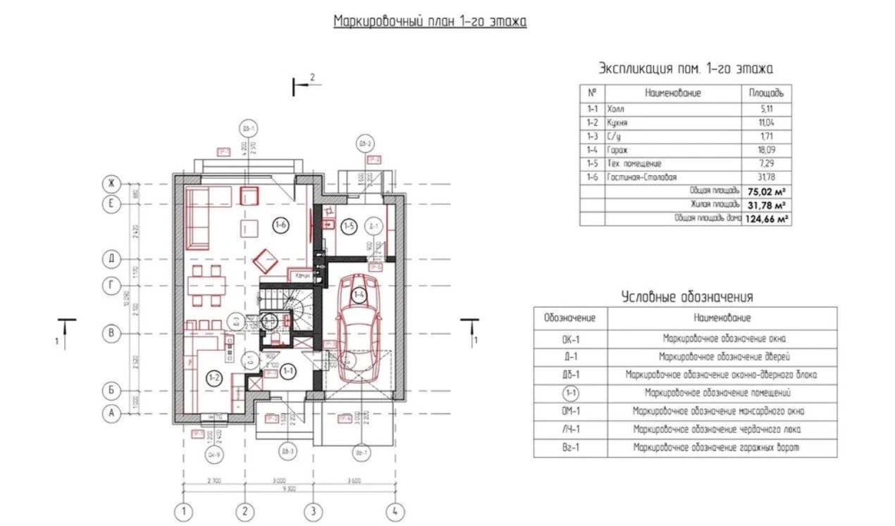
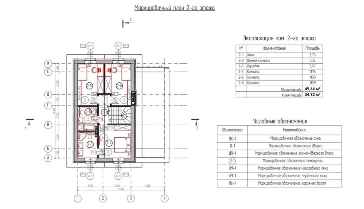
Дім твоєї мрії – котедж біля озера за привабливою ціноюМріяли придбати двоповерховий будинок з ділянкою за доступною ціною? Поспішайте придбати нерухомість під час літніх знижок (до 15%). У заміських будинках можна поринути в атмосферу спокою та віддалитися від галасливого міста. Воно розміщене за 77 км від Києва. Точне місце розташування – село Глушки Київської області. Найближче місто – Біла Церква (на відстані 8 км). Будинки під надійною охороною. У котеджному містечку 7 двоповерхових споруд. Територія навколо обгороджена. Площа одного котеджу становить 125 кв. м. Ділянка, яку можна використовувати для особистих потреб, займає 4,3 сотки. Площа першого поверху – 72,44 кв. м. Там же розміщений гараж, ворота якого працюють в автоматичному режимі. Площа гаража 18,5 кв. м, а ще понад 7 квадратів виділено під котельню. На першому поверсі є: кухня; кімната для гостей; туалет; невеликий коридор. Фундамент залитий монолітною плитою. Для зведення стін був обраний газоблок Aeroc 375 мм. Зимою холод не проникатиме в середину будинку, адже для утеплення фасаду використаний польський пінопласт Greinplast 100 мм. Декором слугують кварцові панелі. Вийшовши з будинку, ви зможете спостерігати за красою природи та чистотою озера. Тиша і спокій після міської суєти стануть найкращим стимулом для придбання котеджу. Екологічно чисті домашні продукти можна придбати на ринку, який розташований поблизу будиночків. Дізнатися більше про котеджне містечко можна, зателефонувавши за вказаним номером телефону. Тип об'єктуБудинок Id оголошення583763 Поділитися 60 000 $ Власник: Александр Повідомлення |















